Jemursari Modern Minimalis Bonus Furnish dekat Tenggilis, Kendangsari
Jemursari Selatan, Surabaya Kota
- Rp 3.950.000.000
Deskripsi dan Spesifikasi
*RUMAH SBY SELATAN MINIMALIS 2 LANTAI CIAMIIK*
On Progres Ready Maret 2024
500 meter dari Raya Jemursari
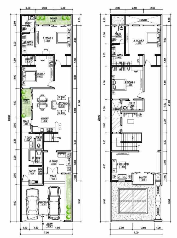
LT 194 M2 (7x28)
LB 300 M2
KT 4+1
KM 4+1
SHM | Hadap Utara
PLN 5500, PDAM
Carport 2 mobil
ROW 4 Mobil
Harga 3.95 M bisa nego
BONUS:
- 5 AC 1.5 Pk
- Tandon atas stanles 1500 liter
- Tandon bawah 2 m3
- 4 Water heater 30 liter
- Kitchen set
- Tayang Sejak3 minggu yang lalu
- Luas Tanah194 m2
- Luas Bangunan300 m2
- Kamar Tidur5
- Kamar Mandi5
- SertifikatSHM - Sertifikat Hak Milik
- KondisiBaru
- KelengkapanKosongan
- Jumlah Lantai2
- MenghadapUtara
- Daya Listrik5500 VA
- Parkir2 mobil
- AC
- K. Pembantu
- Kitchen Set
- Air PAM
- Pengamanan
Dilihat 34 kali
Calc. KPR
×
SELENGKAPNYA
Rumah Dijual di Jemur Wonosari

