Bangunan Ex Dealer Mobil,cocok Tuk Showroom,bengkel Mobil,gudang
Jl. Ry Pasar Minggu, Jakarta Selatan
- Rp 49.000.000.000
Deskripsi dan Spesifikasi
For sale
Lahan dan bangunan ex-dealer mobil, zona komersial, berlokasi di jl.raya pasar minggu, cocok sekali untuk dealer mobil, dealer motor,showroom mobil, bengkel mobil, gudang sparepart, gedung,dll.
Spek lahan:
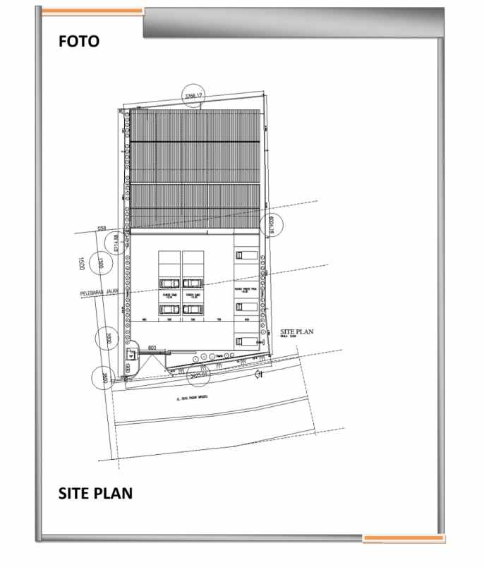
Luas tanah : 2014 m²
Luas bangunan : 900 m²
Harga awal : 73.1 miliar. dengan rincian:
35jt x 2014m = 70.490.000.000
3jt x 900m = 2.700.000.000
Total= 73.190.000.000
Harga sekarag turun jd 49 Miliar.
Lahan dan bangunan ex-dealer mobil, zona komersial, berlokasi di jl.raya pasar minggu, cocok sekali untuk dealer mobil, dealer motor,showroom mobil, bengkel mobil, gudang sparepart, gedung,dll.
Spek lahan:
Luas tanah : 2014 m²
Luas bangunan : 900 m²
Harga awal : 73.1 miliar. dengan rincian:
35jt x 2014m = 70.490.000.000
3jt x 900m = 2.700.000.000
Total= 73.190.000.000
Harga sekarag turun jd 49 Miliar.
- Tayang Sejak12 bulan yang lalu
- Luas Tanah2014 m2
- Luas Bangunan900 m2
- Kamar Tidur2
- Kamar Mandi3
- SertifikatSHM - Sertifikat Hak Milik
- KondisiBekas
- KelengkapanKosongan
- Jumlah Lantai1
- Daya Listrik30000 VA
- Parkir10 atau lebih mobil
Dilihat 39 kali
Calc. KPR
×
SELENGKAPNYA
Komersial Dijual di Pasar Minggu













