Jual Gudang Dibawah Njop Cikokol Tangerang
Cikokol, Tangerang Kota
- Rp 178.280.000.000
Deskripsi dan Spesifikasi
Jual Gudang Cikokol Tangerang
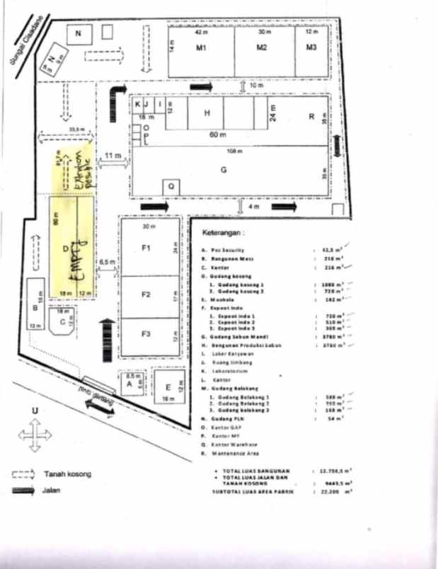
Lt 22. 285
Bangunan 12.261 (factory +warehouse)
Surat SHGB (Expired 16feb2035)
Njop 8 875 000/m2
Status Clean & clean
Jual Rp 178 280 000 000(Rp 8 000 000/m2)
Rp 4 000 000 000 /year (lease)
Cocok : office Space, Supermarket, school,RS
Lokasi dekat primaya Hospital Tangerang, Transmart Carrefour,hotel olive, Tangerang Center, pt indofood
(@ Mr)
- Tayang Sejak2 minggu yang lalu
- Luas Tanah0 m2
- Luas Bangunan0 m2
- Kamar Tidur0
- Kamar Mandi0
- SertifikatSHM - Sertifikat Hak Milik
- KondisiBekas
- KelengkapanKosongan
- Jumlah Lantai1
- Parkir-
Dilihat 39 kali
Calc. KPR
×
SELENGKAPNYA
Komersial Dijual di Cikokol






