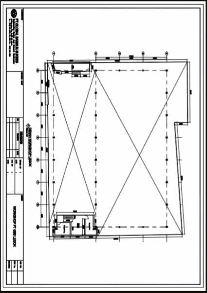
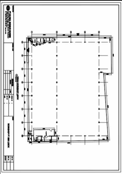
Deskripsi dan Spesifikasi
FOR RENT
Gudang di Legok
Luas Bangunan 1700 m2
Ada kantor 2 lantai
Ada mes isi 5-10 orang
Luas tanah 1640 m2,
Pintu 12 m, Kontener 40 ft bisa masuk
500 jt per tahun
- Tayang Sejak11 bulan yang lalu
- Luas Tanah1640 m2
- Luas Bangunan1700 m2
- Kamar Tidur0
- Kamar Mandi2
- SertifikatSHM - Sertifikat Hak Milik
- KondisiBekas
- KelengkapanKosongan
- Jumlah Lantai2
- Daya Listrik10000 VA
- Parkir-
Dilihat 40 kali
×
SELENGKAPNYA
Komersial Disewakan di Tangerang Kab



